the Terrion Spec on lot 6 in Westwood Heights

the Terrion Spec on lot 6 in Westwood Heights

$649,900 + GST – House and Lot

3+1 bed – 2.5+1 bath

Viewings Available By Appointment Only

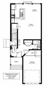
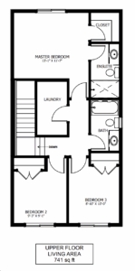
FLOOR PLAN HIGHLIGHTS:

  • kitchen island with eating bar
  • master bedroom withensuite and walk-in closet
  • powder room on main floor
  • upper floor laundry
  • large rear windows
  • developed basement withadditional bedroom, rec room, & bath
  • side entry to basement

Share

Listing Location

the Terrion Spec on lot 6 in Westwood Heights

location may not be publicly accessible and/or viewable from a public location, please call for details.

Inquiry Form

  • This field is for validation purposes and should be left unchanged.